地方住宅、SOHO等
              プロジェクト
              月齢伐採・葉枯し天然乾燥材等
            
            
              現代社会には、洗剤・殺虫剤、新建材などの身近な日用品に含まれる化学物質に反応して、
              日常生活を過ごすことさえ困難な方たちがいます。
              花粉症などと同じように誰もが発症する可能性のある病とも言われていて、
              発症するとごく微量の化学物質にも反応し、頭痛やめまいなど様々な症状により寝たきり生活でありながら、
              化学物質に追われる孤独で過酷な生活となってしまうようです。
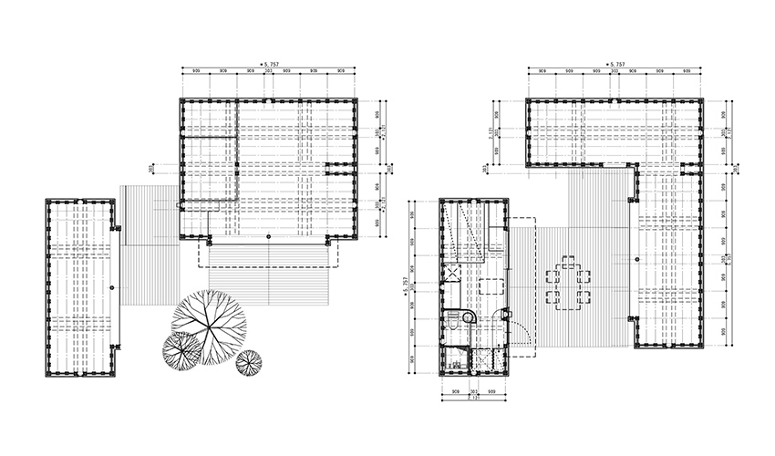
              今回はそんなCSの方にも「居場所」を提供できるように、移設・解体・運搬等が可能なコンパクトな住居案を検討しました。
              解体・移設やオーガニック・天然乾燥材との相性がいい、伝統構法を応用した2つの工法を考えました。
              サイズは、建築用コンテナ20フィート仕様(6.058x2.348x2.591)に基づいています。
              コンテナの特徴を活かして、最小限の住戸ユニットを柔軟に連結できる仕様を前提としています。
              そのため住宅用途だけでなく、ゲストハウスやSOHO・ショップ等のコミュニティー創出(孤独からの解放)、
              災害時への応用の可能性もあると考えています。
              設置前までは工場等で合理的に躯体ボックスを生産し、設置場所に移動後は、
              風土に合わせた法的基準を満たした建築物として耐震性や防火性、
              断熱性を備えた仕様にカスタマイズすることが可能となります。
              引き続きさらなる改良案も計画中です。
              1ユニット:13.17㎡